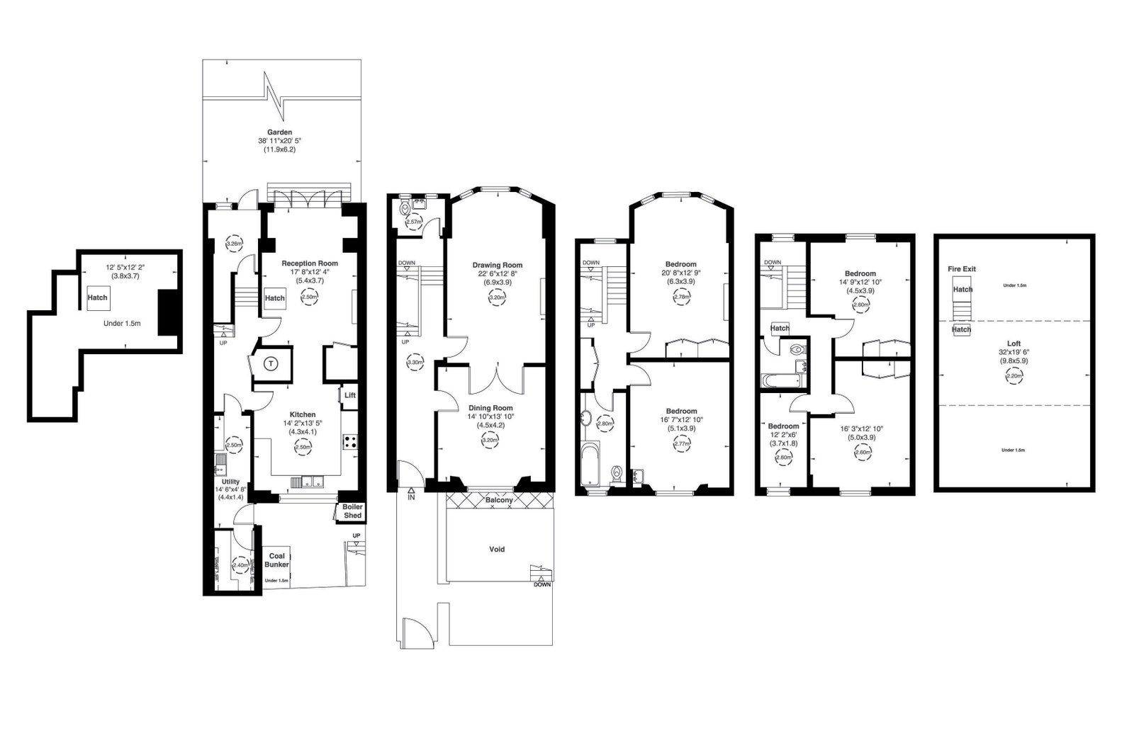
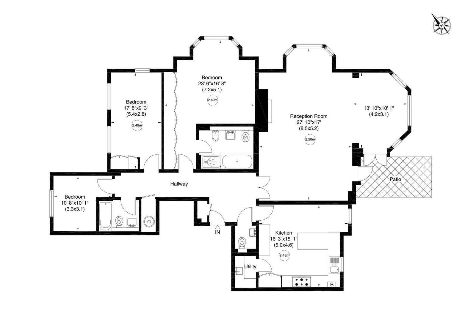
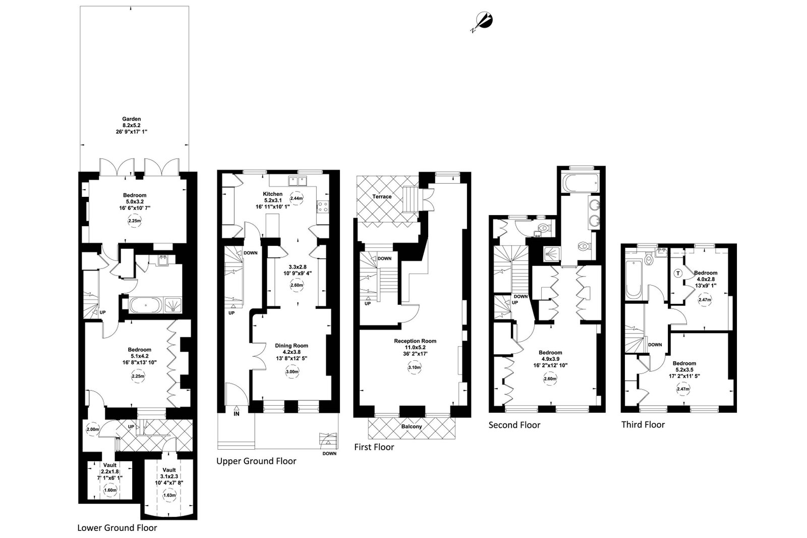
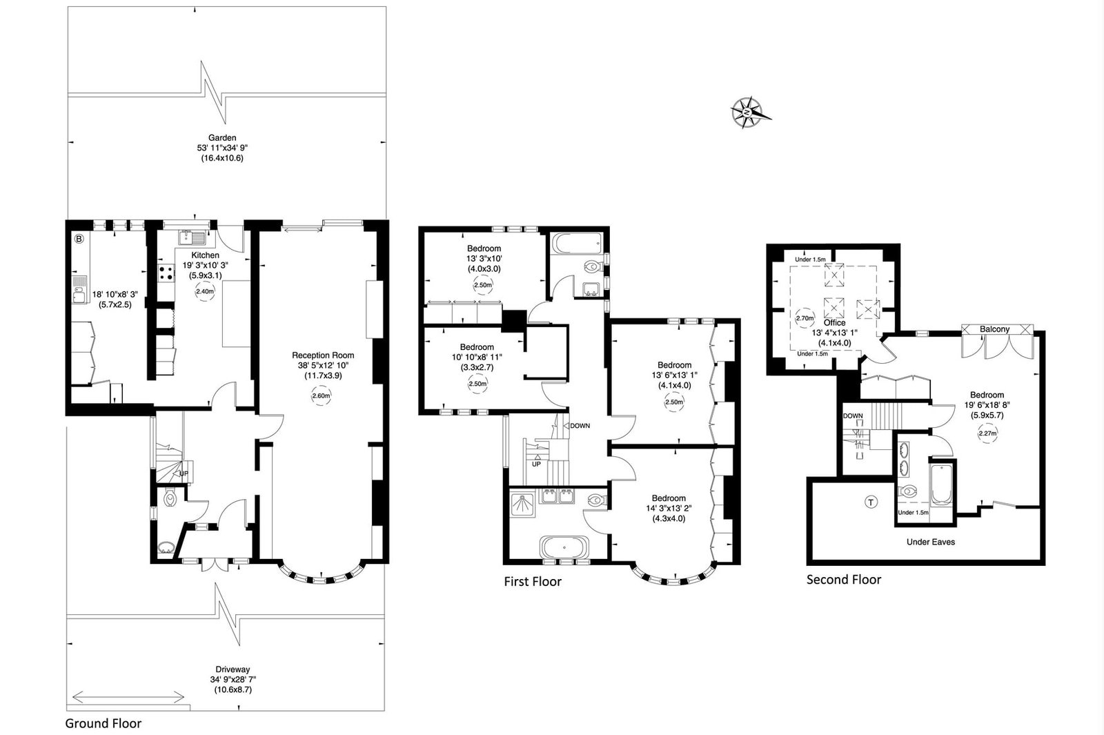
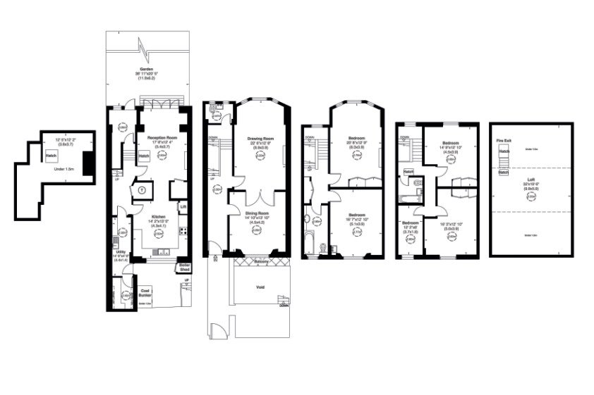
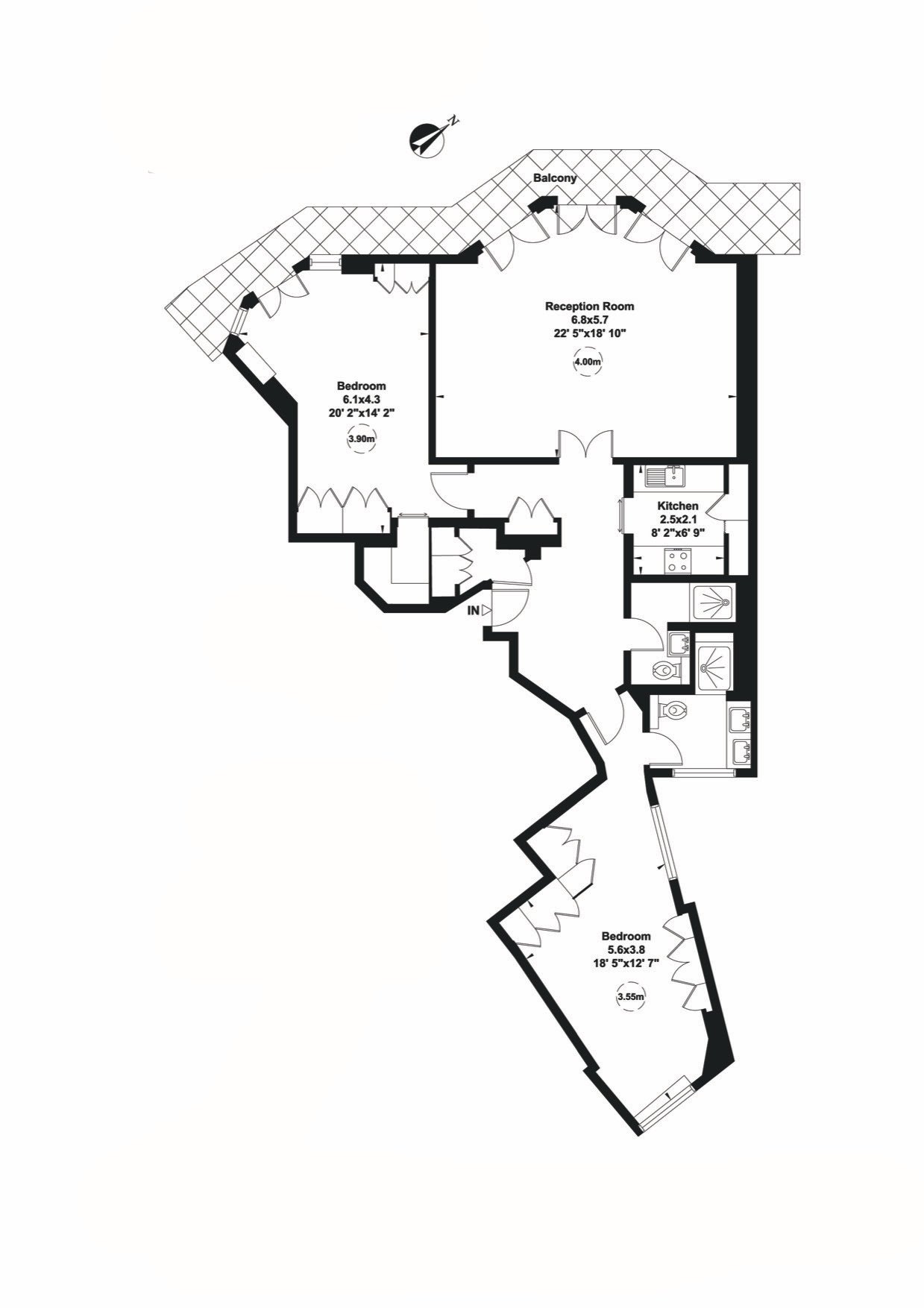
RICS Floor Plan
Digital floor plans created with Royal Institution of Chartered Surveyors or RICS Rules.
Floor plans are created onsite, they include every detail from recess to the back of every cupboard to maximise the possibility of every square foot according to the Royal Institution of Chartered Surveyors or RICS.
Using the most up to date software from MBS accompanied with the latest Laser technology, floor plans are produced to be of the highest possible standard.
The floor plan is visible to the surveyor on a tablet ensuring everything can be checked over before the Surveyor leaves the property giving peace of mind for both Estate Agent and Client.
MBS software LTD Founded in 1997 is used for commercial and architectural projects as such is one of the most accurate.
RICS Floor Plan